07952934281
plansdrawn1@aol.com
Visit our Facebook
Visit our Instagram
Visit our Twitter
About Us
Portfolio
What We Do
Cost
Schemes in Progress
close
Contact
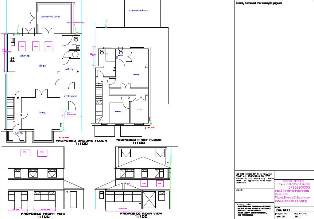
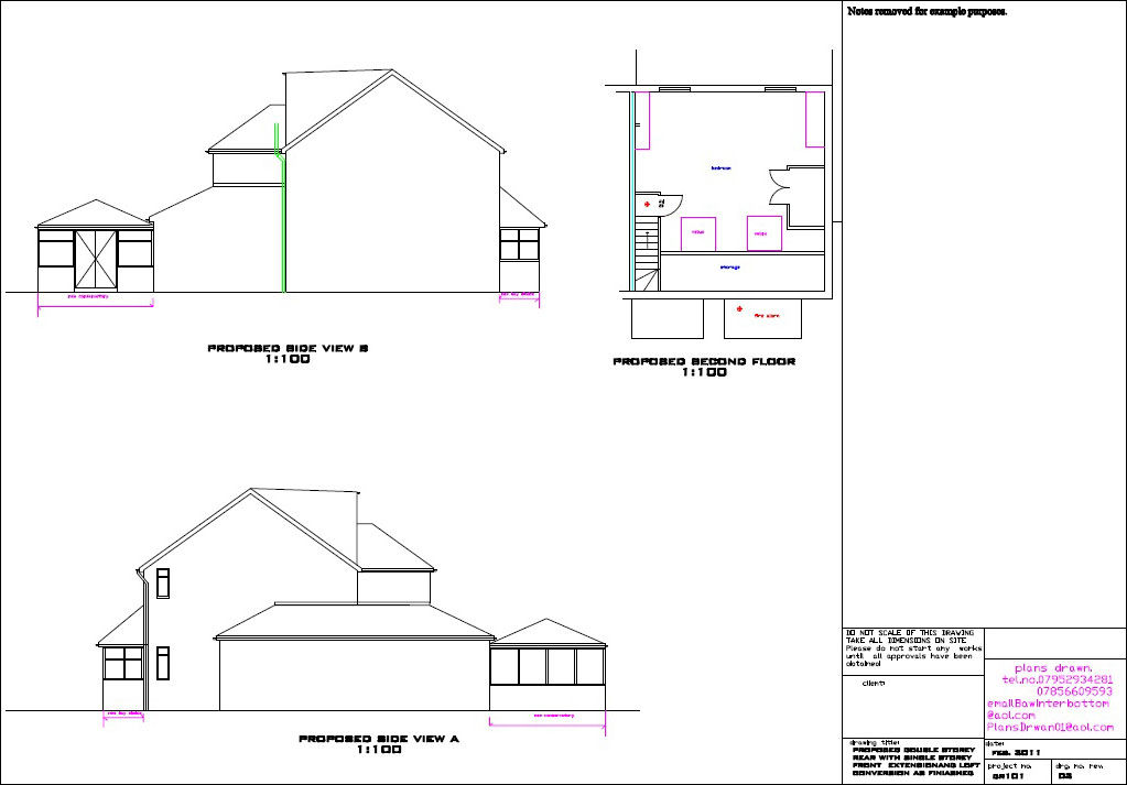
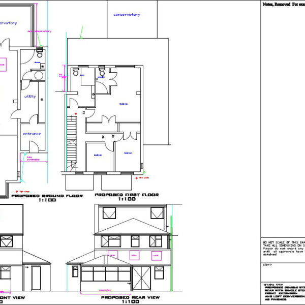
Loft Conversion
Builder: John Harrison, contact tel: 07952934281
Copyright © 2022 - Plans Drawn. All rights reserved.
envelope-o
close
phone
bars
envelope
angle-double-up
chevron-down
linkedin
facebook
pinterest
youtube
rss
twitter
instagram
facebook-blank
rss-blank
linkedin-blank
pinterest
youtube
twitter
instagram